Barrie ON, L4N 3E3
Property Information:
UNBEATABLE INVESTMENT OPPORTUNITY IN BARRIE'S LAKESHORE DISTRICT - RARE LEGAL MULTIPLEX WITH RELIABLE CASH FLOW & STRONG FUTURE GROWTH POTENTIAL! Outstanding opportunity to acquire a legal income-generating multiplex in one of Barrie's most coveted Lakeshore locations, just steps from Kempenfelt Bay and Centennial Beach. Within walking distance of restaurants, shopping, parks, and Barrie's vibrant downtown core filled with entertainment, community events, and waterfront activities, this property truly delivers on lifestyle and convenience. The location also offers excellent connectivity with quick access to the Allandale Waterfront GO Station, local transit routes, and Highway 400. The main front unit features a charming covered porch, a generous yard, a bright, open eat-in kitchen and living room, three upper-level bedrooms, and a full bath. Comfort is assured with forced-air heating and central air conditioning. Behind it, the rear fourplex offers four well-designed units, each with an eat-in kitchen, open living space, two bedrooms, and a full bath, all heated with electric baseboards. With an extended driveway providing ample parking, separate entrances and utility metres, individual storage for every unit, and all kitchen appliances included, this versatile property generates reliable income with plenty of potential for upgrades and future growth. Properties of this scale and in such a prime location are rarely available - secure this exceptional investment today and reap the rewards for years to come! (id:27)
Building Features:
- Style: Multiplex
- Building Type: Other
- Amenities: Separate Hydro Meters
- Basement Type: Full
- Exterior Finish: Brick, Vinyl siding
- Floor Space: 3500 - 5000 sqft
- Foundation Type: Stone, Block
- Heating Type: Forced air
- Heating Fuel: Natural gas
- Cooling Type: Central air conditioning
- Appliances: Dryer, Stove, Washer, Refrigerator
Property Features:
- Property Type: Multi-family
- Bedrooms: 11
- Bathrooms: 6
- Half Bathrooms: 1
- Amenities Nearby: Park, Public Transit, Schools
- Features: Flat site, Sump Pump
- Fence Type: Partially fenced
- Floor Space (approx): 3500 - 5000 Square Feet
- Irregular: Yes
- Lot Depth: 165.0 Feet
- Lot Frontage: 66.0 Feet
- Lot Size: 66 x 165 FT ; 65.78 X 163.32 X 66.01 ft
- Surface Water:
- Utility Type: Cable - Available, Sewer - Installed, Hydro - Installed
- Zoning: RM2
- Sewer: Sanitary sewer
- Parking Type: No Garage
- No. of Parking Spaces: 6
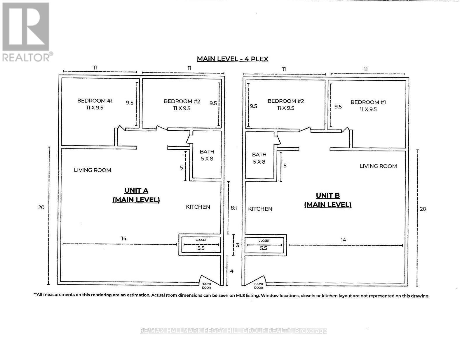
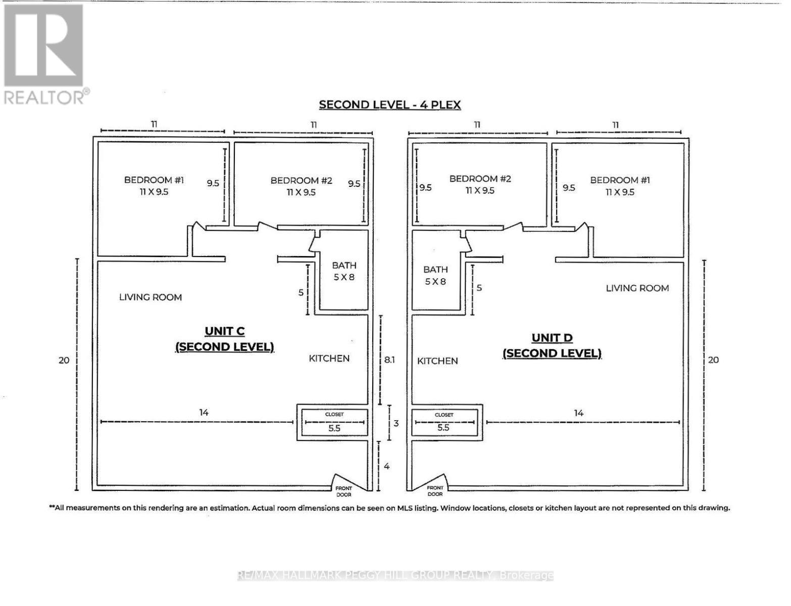
Rooms:
- Kitchen 2nd Level 2.46 m x 1.65 m 8.07 ft x 5.41 ft
- Living 2nd Level 4.27 m x 6.10 m 14.01 ft x 20.01 ft
- Bedroom 2nd Level 3.35 m x 2.87 m 10.99 ft x 9.42 ft
- Bedroom 2nd Level 3.35 m x 2.87 m 10.99 ft x 9.42 ft
- Kitchen 2nd Level 2.46 m x 1.65 m 8.07 ft x 5.41 ft
- Living 2nd Level 4.27 m x 6.10 m 14.01 ft x 20.01 ft
- Bedroom 2nd Level 3.35 m x 2.87 m 10.99 ft x 9.42 ft
- Bedroom 2nd Level 3.35 m x 2.87 m 10.99 ft x 9.42 ft
- Bedroom 2nd Level 3.71 m x 3.10 m 12.17 ft x 10.17 ft
- Bedroom 2nd Level 4.01 m x 3.66 m 13.16 ft x 12.01 ft
- Bedroom 2nd Level 2.82 m x 2.64 m 9.25 ft x 8.66 ft
- Foyer Main Level 1.96 m x 3.66 m 6.43 ft x 12.01 ft
- Kitchen Main Level 2.46 m x 1.65 m 8.07 ft x 5.41 ft
- Living Main Level 4.27 m x 6.10 m 14.01 ft x 20.01 ft
- Bedroom Main Level 3.35 m x 2.87 m 10.99 ft x 9.42 ft
- Bedroom Main Level 3.35 m x 2.87 m 10.99 ft x 9.42 ft
- Kitchen Main Level 6.43 m x 3.73 m 21.10 ft x 12.24 ft
- Living Main Level 3.66 m x 3.73 m 12.01 ft x 12.24 ft
- Kitchen Main Level 2.46 m x 1.65 m 8.07 ft x 5.41 ft
- Living Main Level 4.27 m x 6.10 m 14.01 ft x 20.01 ft
- Bedroom Main Level 3.35 m x 2.87 m 10.99 ft x 9.42 ft
- Bedroom Main Level 3.35 m x 2.87 m 10.99 ft x 9.42 ft
Convert Measurement to:
⚠ Potential Investment Performance
There is not enough data on this property to provide a potential investment performance at this time, please click the button below for an in-person valuation
Market Price Trends
Location of 81 INNISFIL STREET, Barrie, Ontario, L4N 3E3
Demographic Information of 81 INNISFIL STREET, Barrie, Ontario, L4N 3E3
Life Stage
Young CouplesEmployment Type
Blue Collar/Primary, Blue Collar/Service SectorAverage Household Income
$98,448.96Average Number of Children
1.49Household Population
Household Structure
Age of Population
Education
Education Level
No certificate/diploma/degree
15.02 %High school certificate or equivalent
41.09 %Apprenticeship trade certificate/diploma
8.57 %College/non-university certificate
23.5 %University certificate (below bachelor)
0.71 %University Degree
11.11 %Commuter
Travel To Work
By Car
74.18 %By Public Transit
9.85 %By Walking
12.44 %By Bicycle
0.0 %By Other Methods
3.53 %Cultural Diversity
Knowledge of Official Language
Mother Tongue
Building Information
Building Type
Apartments (Low and High Rise)
51.8 %Houses
48.2 %











