$825,000

Townhouse For Sale In Stride Avenue, Burnaby, British Columbia

$825,000
  • 3

    Bedrooms

  • 2

    Baths

  • $404.88

    Maintenance Fees

Property Information:

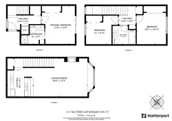
Spacious 3-bedroom, 3-level townhouse which is located in the prestigious Edmonds, a quiet and nice community. Open concept floor plan, primary bedroom with ensuite bathroom at lower level! Flexible with 2 bedrooms with a full bathroom. The owner has lived here for around 20 years, takes good care and does good maintenance. Upgrades include HW tank (2020), Laminated floor (2020), Elec FP (2018), Bathroom (2015), Below level Elec heater (2020). Generous outdoor patio/fenced yard for family entertainment, underground secure parking, storage, bikes parking and PET FRIENDLY. Minutes to Edmonds Skytrain station, Highgate Village shopping, Stride Elementary, Byrne Creek Secondary, parks, Edmonds Community Center and more. A terrific home awaits. Don't miss out!!!

Building Features:

  • Floor Space: 1152 Square Feet

Property Features:

  • Bedrooms: 3
  • Bathrooms: 2+0
  • Annual Tax Amount: $2,216
  • Appliances: Washer/Dryer, Dishwasher, Refrigerator
  • Architectural Style: 3 Storey
  • Association Amenities: Caretaker, Trash, Maintenance Grounds, Management
  • Basement: None
  • Built in: 1992
  • Community Features: Shopping Nearby
  • Condo Fees: $404
  • Exterior Features: Private Yard
  • Fireplace Features: Electric
  • Floor Space (approx): 1152 Square Feet
  • Heating: Electric
  • Laundry Features: In Unit
  • Levels: Three Or More
  • Lot Features: Central Location, Recreation Nearby
  • Lot Frontage: 0 Feet
  • Parking Features: Additional Parking, Underground, Guest, Lane Access, Rear Access
  • Security Features: Smoke Detector(s)
  • Structure Type: Residential Attached
  • No. of Parking Spaces: 1

Courtesy of: Nu Stream Realty Inc.

The data relating to real estate on this web site comes in part from the MLS® Reciprocity program of the Greater Vancouver REALTORS®, the Fraser Valley Real Estate Board or Chilliwack & District Real Estate Board. Real estate listings held by participating real estate firms are marked with the MLS® Reciprocity logo and detailed information about the listing includes the name of the listing agent. This representation is based in whole or part on data generated by the Greater Vancouver REALTORS®, the Fraser Valley Real Estate Board or Chilliwack & District Real Estate Board which assumes no responsibility for its accuracy. The materials contained on this page may not be reproduced without the express written consent of the Greater Vancouver REALTORS®, the Fraser Valley Real Estate Board or Chilliwack & District Real Estate Board.