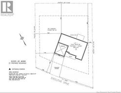
3 Executive Drive, Hampton, New Brunswick, E5N 5J7
$589,000MLS® # NB131067
House For Sale In Hampton, New Brunswick
5
Bedrooms
3
Baths
-
1576.00 Square Metres
Lot Size
Property Information:
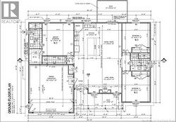
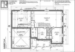
Beautiful new construction in the heart of Hampton, offering modern style, quality craftsmanship, and great flexibility for todays families. With the foundation and framing complete, the home will be ready in a few months, and early buyers may still select some finishes. The main level features approx. over 1,600 sq. ft. of bright, open-concept living with 10 ft ceilings, engineered hardwood floors, a stylish fireplace, and a modern kitchen with quartz countertops, walk-in pantry, and sleek cabinetry. The layout includes a spacious primary bedroom with walk-in closet and ensuite, plus two additional bedrooms and a full bath, ideal for families or those seeking one-level living. The fully finished lower level adds another approx. over 1,600 sq. ft. with 9 ft ceilings, including two bedrooms (one non-conforming), a large rec room, and a finished walkout in-law suite with its own bathroom and kitchenette, perfect for extended family or potential rental income. A two-car garage, paved driveway, quality exterior finishes, and a 10-Year Atlantic Home Warranty complete this impressive package. A rare chance to own a thoughtfully designed new home in one of Hamptons most welcoming communities. All measurements to be verified by the buyer. HST rebate to be assigned to the builder. (id:27)
Building Features:
- Style: Detached
- Building Type: Garden Home
- Architectural Style: Bungalow
- Basement Development: Finished
- Basement Type: Full
- Exterior Finish: Vinyl
- Floor Space: 3220 sqft
- Flooring Type: Ceramic, Vinyl, Hardwood
- Foundation Type: Concrete
- Total Finished Area: 3220 sqft
- Heating Type: Baseboard heaters
- Heating Fuel: Electric
Property Features:
- OwnershipType: Freehold
- Property Type: Single Family
- Bedrooms: 3+2
- Bathrooms: 3
- Access Type: Year-round access, Road access
- Built in: 2025
- Features:
- Floor Space (approx): 3220 Square Feet
- Lot Size: 1576.00 Square Metres
- Road Type: Paved road
- Sewer: Municipal sewage system
- Parking Type: Attached garage, Integrated garage, Garage, Inside Entry
Rooms:
- Bedroom Basement Level 12'4'' x 9'8''
- Bedroom Basement Level 16'4'' x 10'10''
- Living Main Level 15' x 17'4''
- Dining Main Level 11'6'' x 14'8''
- Kitchen Main Level 10' x 14'8''
- Bedroom Main Level 12'6'' x 13'10''
- Bedroom Main Level 12'6'' x 13'4''
- Bedroom Main Level 14'2'' x 14'8''
Courtesy of: eXp Realty
This listing content provided by REALTOR.ca has been licensed by REALTOR® members of The Canadian Real Estate Association.
This listing content provided by REALTOR.ca has been licensed by REALTOR® members of The Canadian Real Estate Association.
Additional Photos







