268 TUNIS STREET, Ingersoll (Ingersoll - South), Ontario, N5C 1W7
$600,000MLS® # X12250141
House For Sale In Ingersoll (Ingersoll - South), Ontario
4
Bedrooms
4
Baths
-
66 x 132 FT
Lot Size
Property Information:
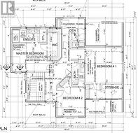
A Unique Opportunity for a Custom Build on Private Tunis Street Lot. Nestled behind a screen of majestic tall cedar trees, this exceptionally private property at 268 Tunis Street offers a rare opportunity to bring your dream home to life. This custom-designed, two-storey home is a canvas awaiting your personal touch, with a spacious 2,387 sq. ft. floor plan that is larger than it appears from the street. The thoughtfully designed layout includes four bedrooms and four bathrooms, providing ample space for a growing family or those who love to host. The heart of the home is illuminated by beautiful French doors that bathe the space in natural light and open onto a large back deck, perfect for summer evenings and overlooking a generous yard with a cleverly hidden play area for children. The expansive 66' x 132' lot provides plenty of room for outdoor activities and includes a designated space for a future detached garage in the backyard. Situated in a highly desirable and friendly neighbourhood, this home is just a short and safe walk for the kids to local schools and a leisurely stroll to the charming downtown Ingersoll. The Opportunity: This home is currently in the construction phase, offering the unique advantage for you, the buyer, to select your own finishes and truly make it your own. Included in the current price: A brand new, high-efficiency furnace and air conditioning unit will be installed. The plumbing will be fully roughed-in upon closing. Seize this chance to get in at the ground level. The price is scheduled to increase upon the completion of the electrical and siding work. Act now to customize these crucial elements to your exact specifications and taste. (id:27)
Building Features:
- Style: Detached
- Building Type: House
- Basement Development: Unfinished
- Basement Type: N/A
- Construction Style - Attachment: Detached
- Exterior Finish: Wood
- Floor Space: 2000 - 2500 sqft
- Foundation Type: Concrete
- Heating Type: Forced air
- Heating Fuel: Natural gas
- Cooling Type: Central air conditioning
Property Features:
- OwnershipType: Freehold
- Property Type: Single Family
- Bedrooms: 4
- Bathrooms: 4
- Half Bathrooms: 1
- Floor Space (approx): 2000 - 2500 Square Feet
- Irregular: Yes
- Lot Depth: 132.0 Feet
- Lot Frontage: 66.0 Feet
- Lot Size: 66 x 132 FT
- Sewer: Sanitary sewer
- Parking Type: Attached garage, Garage
- No. of Parking Spaces: 6
Rooms:
- Family Main Level 2.62 m x 5.38 m 8.60 ft x 17.65 ft
- Kitchen Main Level 6.49 m x 3.35 m 21.29 ft x 10.99 ft
- Primary Bedroom Upper Level 5.03 m x 3.43 m 16.50 ft x 11.25 ft
- Bedroom Upper Level 4.45 m x 4.47 m 14.60 ft x 14.67 ft
- 2nd Bedroom Upper Level 3.47 m x 3.35 m 11.38 ft x 10.99 ft
Courtesy of: COMFREE
This listing content provided by REALTOR.ca has been licensed by REALTOR® members of The Canadian Real Estate Association.
This listing content provided by REALTOR.ca has been licensed by REALTOR® members of The Canadian Real Estate Association.
Additional Photos









