362 IVINGS DRIVE, Saugeen Shores, Ontario, N0H 2C1
$944,900MLS® # X11896904
House For Sale In Saugeen Shores, Ontario
4
Bedrooms
3
Baths
-
44.6 x 123.7 FT
Lot Size
Property Information:
SECONDARY SUITE - NEW BUILD - the framing is complete for this brand new 1509 sqft home featuring 2 bedrooms and 2 baths on the main floor along with a completely self-contained basement apartment with 2 bedrooms and 1 bath. Perfect setup for family members to share, rental income to help pay the mortgage while you live upstairs, or 2 seperate rental units to add to your investment portfolio. Price includes hardwood and ceramic throughout the main floor, vinyl plank and ceramic in the lower level, Quartz counter tops in the main floor kitchen, laminate in the lower kitchen and all baths. There are laundry hookups in both units and there is a room in the lower level for the use of the main floor occupant. Exterior finishes include sodded yard, concrete drive and partially covered deck measuring 17'8 x 12 off the main floor kitchen. The house will be heated with a gas forced air furnace and one gas fireplace. HST is included in the asking price provided the Buyer qualifies for the rebate and assigns it to the Builder on closing. Prices to subject to change without notice. (id:27)
Building Features:
- Style: Detached
- Building Type: House
- Amenities:
- Architectural Style: Raised bungalow
- Basement Type: N/A, N/A
- Construction Style - Attachment: Detached
- Exterior Finish: Vinyl siding, Stone
- Fireplace: Yes
- Floor Space: 1100 - 1500 sqft
- Flooring Type: Tile, Vinyl, Hardwood
- Foundation Type: Poured Concrete
- Heating Type: Forced air
- Heating Fuel: Natural gas
- Cooling Type: None, Air exchanger
- Appliances: Garage door opener remote
Property Features:
- OwnershipType: Freehold
- Property Type: Single Family
- Bedrooms: 2+2
- Bathrooms: 3
- Amenities Nearby: Schools
- Features: Flat site, Sump Pump
- Floor Space (approx): 1100 - 1500 Square Feet
- Irregular: Yes
- Lot Depth: 123.7 Feet
- Lot Frontage: 44.6 Feet
- Lot Size: 44.6 x 123.7 FT
- Utility Type: Hydro - Installed, Cable - Available, Sewer - Installed
- Zoning: R1-84
- Sewer: Sanitary sewer
- Parking Type: Attached garage
- No. of Parking Spaces: 4
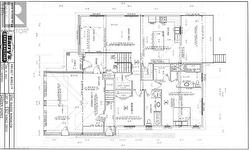
Rooms:
- 2nd Bedroom Lower Level 3.20 m x 3.50 m 10.50 ft x 11.48 ft
- Bedroom Lower Level 3.20 m x 3.60 m 10.50 ft x 11.81 ft
- Family Lower Level 4.08 m x 3.13 m 13.39 ft x 10.27 ft
- Kitchen Lower Level 3.35 m x 2.71 m 10.99 ft x 8.89 ft
- Living Lower Level 6.64 m x 3.99 m 21.78 ft x 13.09 ft
- Foyer Main Level 3.38 m x 2.13 m 11.09 ft x 6.99 ft
- Living Main Level 3.65 m x 4.05 m 11.98 ft x 13.29 ft
- Dining Main Level 3.04 m x 4.05 m 9.97 ft x 13.29 ft
- Kitchen Main Level 3.62 m x 5.24 m 11.88 ft x 17.19 ft
- Laundry Main Level 1.82 m x 1.88 m 5.97 ft x 6.17 ft
- Primary Bedroom Main Level 4.26 m x 4.29 m 13.98 ft x 14.07 ft
- 2nd Bedroom Main Level 3.29 m x 3.32 m 10.79 ft x 10.89 ft
Courtesy of: RE/MAX Land Exchange Ltd.
This listing content provided by REALTOR.ca has been licensed by REALTOR® members of The Canadian Real Estate Association.
This listing content provided by REALTOR.ca has been licensed by REALTOR® members of The Canadian Real Estate Association.
Additional Photos

