2416 HIGHLAND AVENUE, Windsor, Ontario, N8X 3S7
$799,000MLS® # 25021140
Investment For Sale In South Central, Windsor, Ontario
Property Information:
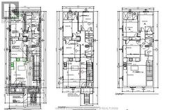
A brand new, purpose-built 3-unit multi-family property on a spacious 3000 sq ft lot in a sought-after East Windsor location. This thoughtfully designed project offers three self-contained units, each with a functional 3-bedroom layout, modern kitchen, open-concept living/dining area, and 3 full bathrooms, all with private entrances for maximum privacy and convenience. Built with today’s lifestyle in mind, the property features energy-efficient construction, central air conditioning, forced-air furnace, and natural gas heating. Interiors are finished with ceramic or porcelain tile, laminate flooring, and a durable exterior blend of aluminum/vinyl, brick, and stucco. Additional highlights include 3 parking spaces with gravel drive, a low-maintenance asphalt roof, and full sanitary/water utility connections. Ideally located just off Foch Ave, this property is close to schools, shopping, public transit, parks, and everyday amenities—making it a smart choice for investors and highly appealing to families seeking modern, convenient living. (id:27)
Building Features:
- Style: Multiplex
- Building Type: Duplex
- Amenities: Laundry Facility, Shopping Area
- Exterior Finish: Brick, Stucco
- Flooring Type: Laminate
- Foundation Type: Concrete
- Heating Type: Forced air
- Heating Fuel: Natural gas
- Cooling Type: Central air conditioning, Fully air conditioned
Property Features:
- OwnershipType: Freehold
- Property Type: Multi-family
- Irregular: Yes
- Lot Size: 3000 SQ FT
- Zoning: RD1.3
- Parking Type: Other
- No. of Parking Spaces: 3
Rooms:
- Bathroom 2nd Level Measurements not available
- Bathroom 2nd Level Measurements not available
- Laundry 2nd Level Measurements not available
- Primary Bedroom 2nd Level Measurements not available
- Bedroom 2nd Level Measurements not available
- Bedroom 2nd Level Measurements not available
- Kitchen 2nd Level Measurements not available
- Breakfast 2nd Level Measurements not available
- Living 2nd Level Measurements not available
- Primary Bedroom Basement Level Measurements not available
- Bedroom Basement Level Measurements not available
- Bedroom Basement Level Measurements not available
- Laundry Basement Level Measurements not available
- Kitchen Basement Level Measurements not available
- Breakfast Basement Level Measurements not available
- Bathroom Basement Level Measurements not available
- Bathroom Basement Level Measurements not available
- Living Basement Level Measurements not available
- Bathroom Main Level Measurements not available
- Bathroom Main Level Measurements not available
- Primary Bedroom Main Level Measurements not available
- Bedroom Main Level Measurements not available
- Bedroom Main Level Measurements not available
- Laundry Main Level Measurements not available
- Kitchen Main Level Measurements not available
- Breakfast Main Level Measurements not available
- Living Main Level Measurements not available
Courtesy of: REAL BROKER ONTARIO LTD
This listing content provided by REALTOR.ca has been licensed by REALTOR® members of The Canadian Real Estate Association.
This listing content provided by REALTOR.ca has been licensed by REALTOR® members of The Canadian Real Estate Association.
Additional Photos




