400 000 $

Maison À vendre à Canora, Edmonton, Alberta

400 000 $
  • 3

    Chambres

  • 2

    Salles de bain

  • 343.21 Mètres carrés

    Dimension du terrain

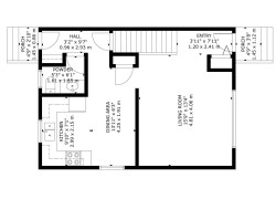
Charming 2-storey half duplex with detached double garage (20x20) in Canora. This 1,140 sqft (plus full basement) home features upgrades throughout including new appliances, phantom screen door, freshly painted walls, newer above grade triple panel windows (2022) and new shingles. On the main level: spacious living room with large east-facing windows, kitchen and dining area with tile flooring & modern lighting and a 2-piece powder room. Upstairs: 3 generous-sized bedrooms and a 4-piece bathroom. The partially finished basement boasts plenty of space for a family room, storage or hobby room as well as laundry room. Outside: a large, partially fenced yard with patio, storage shed and pathway to the garage with back alley access. Located on a quiet treed street near all amenities as well as walking trails and MacKinnon Ravine. Easy access to Stony Plain Road for commuting. No condo fees! Other half of duplex is also for sale through different agent MLS E4456467

Particularités du bâtiment :

  • Piscine: Oui
  • Stationnement: Oui
  • Surface utile: 106 Mètre

Caractéristiques :

  • Accès routier: Pavé
  • Appareils ménagers: Sécheuse, Congélateur, Télécommande de porte de garage, Ventilateur de hotte pour four à micro-ondes, Réfrigérateur, Remise, Cuisinière électrique, Laveuse, Rideaux
  • Bâti en: 1990
  • Caractéristiques de commodités: Détecteurs de fumée, Foyer, Maison sans animaux, Maison sans fumée, Patio
  • Caractéristiques de la communauté: Détecteurs de fumée, Foyer, Maison sans animaux, Maison sans fumée, Patio
  • Caractéristiques du stationnement: Garage double détaché
  • Caractéristiques extérieures: Ruelle, Près d'un terrain de jeu, Piscine publique, Transport public, Écoles, Centre commercial à proximité, Partiellement clôturé
  • Chambres : 3
  • Chauffage: =Air pulsé-1, Gaz naturel
  • Détails de la fondation: Périmètre en béton
  • Dimensions du terrain : 343.21 Mètres carrés
  • État du sous-sol: Fini
  • Forme du lot: Rectangulaire
  • Points d'intérêt du site: Ruelle, Terrain de jeux Nearby, Piscine publique, Transport public, Écoles, Centre commercial à proximité, Partiellement clôturé
  • Revêtement de plancher: Moquette, Carreaux de céramique, Plancher stratifié
  • Salle(s) de bains : 1+1
  • Sous-sol: Pleine grandeur, Fini
  • Style architectural: 2 étages
  • Superficie habitable (approx): 106 Mètres carrés
  • Toit: Bardeaux d'asphalte
  • Type de bâtiment: Semi-duplex
  • Type de sous-sol: Pleine grandeur
  • Zonage: Zone 21
  • Nbre d'espaces de stationnement: 4

Gracieuseté de : Royal LePage Noralta Real Estate

Dernière mise à jour des données le 2025-12-03 à 15:06

The data relating to real estate for sale on this web site comes in part from the Internet Data exchange (“IDX”) program of the REALTORS® Association of Edmonton. IDX information is provided exclusively for consumers' personal, non-commercial use and may not be used for any purpose other than to identify prospective properties consumers may be interested in purchasing. The data on this website is deemed reliable but is not guaranteed accurate by the REALTORS® Association of Edmonton. Information deemed reliable but not guaranteed.

Copyright 2025 by the REALTORS® Association of Edmonton. All Rights Reserved. Data is deemed reliable but is not guaranteed accurate by the REALTORS® Association of Edmonton.