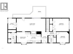
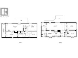
1805 39 Avenue, Vernon, British Columbia, V1T 3A6
764 800 $No. MLS® 10369891
Le contenu de cette inscription est fourni par REALTOR.ca et a été autorisé par les membres de l'Association canadienne de l'immeuble.
Photos supplémentaires

































































































