495 000 $

Commercial À vendre à Truro, Nouvelle-Écosse

495 000 $

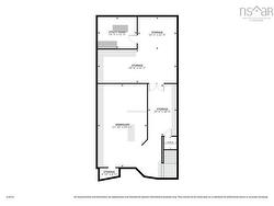
Beautiful Heritage Retail / office building in Downtown Truro. Inglis Place has been a go-to location for unique retail and to experience the small town shopping feel unique to the maritimes. The grade level and 2nd floor consist of over 3100ft2 of actual floor area, with the lower basement level adding another 1600ft2 of space.The full basement is perfect for storage or potentially further retail or business uses. Upgrades over the past couple if years have included replacing the boiler, installing a fibreglass oil tank, new siding, new vinyl windows, 25-year warrantied roofing membrane installed in 2020, and interior cosmetic upgrades in new flooring & lighting fixtures. Floor plans for each floor are included in the pictures as part of the listing.

Caractéristiques :

  • Bâti en: Y
  • CARACTÉRISTIQUES DU BÂTIMENT: Accessibilité pour fauteuils roulants
  • Construction: Charpente en bois
  • Documents au Dossier: Plan de l'étage
  • Entrée de GarageéStationnement: Aucun
  • Matériel de location: Aucun
  • Points d'intérêt du site: Commerces à proximité, Exposition visuelle, Stationnement public, Commerces à proximité, Exposition visuelle, Stationnement public
  • Protection Contre les Incendies: Détecteur de fumée
  • Revêtement de Plancher: Béton, Bois
  • Services: Câble, Électricité, Approvisionnement en eau par la ville, Téléphone
  • Source d'eau: Municipal
  • Sous-type: Médical, Bureau, Restauration, Centre commercial
  • Superficie habitable (approx): 4294 Pieds carrés
  • Taille de la propriété: Moins de 0,5 acre
  • Titre d'un bien-fonds: Propriété franche
  • Toit: Rouleaux asphaltés
  • Type de Carburant: Électrique, Huile
  • Type de Chauffage/Refroidissement: Thermopompe - sans conduit, Eau chaude, Radiateur

Gracieuseté de : Two Bridges Realty Inc.

Données fournies par : Nova Scotia Association of REALTORS® 68 Highfield Park Drive, Bureau 112, Dartmouth, Nouvelle-Écosse B3A 0E4
Nous croyons que tous les renseignements affichés sont exacts, mais nous ne le garantissons pas; les renseignements devraient être vérifiés de façon indépendante. Aucune garantie ou représentation de quelque nature que ce soit n’est offerte. Droits © 2021 Tous les droits sont réservés.