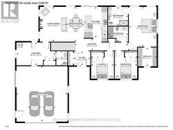
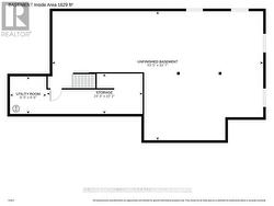
9145 COUNTY ROAD 6 ROAD, Augusta, Ontario, K0G 1R0
744 900 $No. MLS® X12267321
Le contenu de cette inscription est fourni par REALTOR.ca et a été autorisé par les membres de l'Association canadienne de l'immeuble.
Photos supplémentaires













































