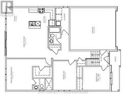
60 SUMMIT (LOT 24) CRESCENT, Belleville (Belleville Ward), Ontario, K8N 0A2
649 000 $No. MLS® X12501970
Le contenu de cette inscription est fourni par REALTOR.ca et a été autorisé par les membres de l'Association canadienne de l'immeuble.
Photos supplémentaires





























