Maison À vendre à Blue Mountains, Ontario
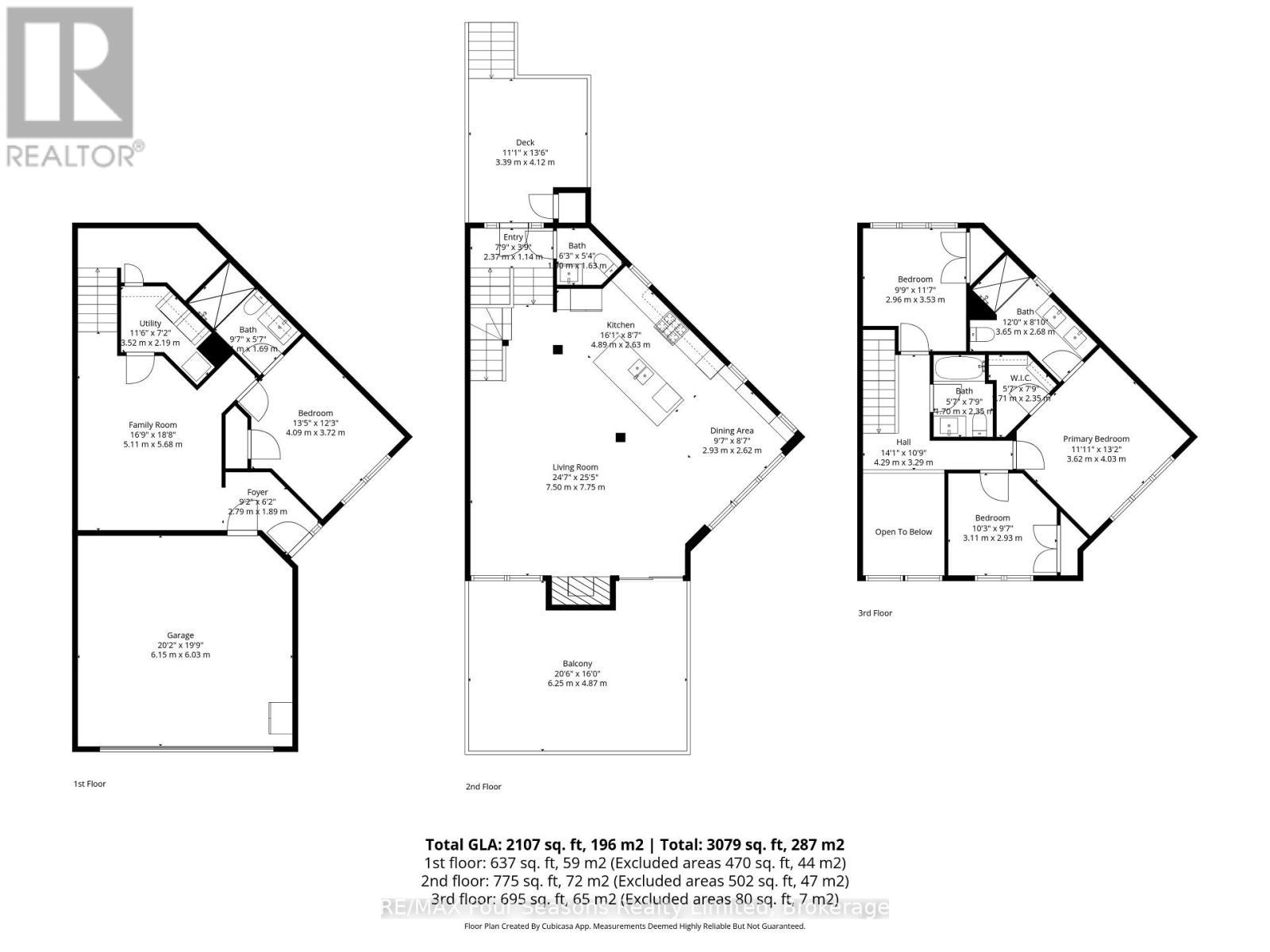
1 650 000 $ ÉvaluationExpressMC: Non disponible4 Chambres
4 Salles de bain
-
Détails
-
Carte
-
Données démographiques
-
Vue de la rue
-
Itinéraire
-
Publicité
MULTIMEDIA













































