Sales Representative
Royal LePage Real Estate Services Ltd.
, Courtage*
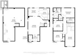
24 ACCENT CIRCLE, Brampton, Ontario, L7A 0L2
899 000 $No. MLS® W12205361
Photos supplémentaires



































