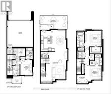
8 - 2273 TURNBERRY ROAD, Burlington, Ontario, L7M 2B2
1 599 900 $No. MLS® W12140055
Le contenu de cette inscription est fourni par REALTOR.ca et a été autorisé par les membres de l'Association canadienne de l'immeuble.
Photos supplémentaires















































