423 IRWIN STREET, Midland, Ontario, L4R 2V6
699 900 $No. MLS® S12347563
Maison À vendre à Midland, Ontario
699 900 $
4
Chambres
2
Salles de bain
-
71 x 97.5 Acre
Dimension du terrain
Remarques :
(id:27)
Particularités du bâtiment :
- Style: Maison détachée
- Type de bâtiment: Unifamiliale
- État du sous-sol: Autre, voir remarques, Aménagé
- Fondation: Béton coulé
- Protection incendie: Détecteurs de fumée
- Revêtement extérieur: Brique
- Stationnement: Oui
- Surface utile: 2000 - 2500 sqft
- Type de construction: Isolée
- Type de sous-sol: s.o., s.o.
- Type de chauffage: Air pulsé
- Combustible de chauffage: Gaz naturel
- Type de climatisation: Aucun
Caractéristiques :
- Type de possession: Tenure franche
- Type de propriété: Unifamiliale
- Caractéristiques: Terrain irrégulier
- Caractéristiques de la communauté: Centre communautaire
- Chambres : 4
- Dimensions du terrain : 71 x 97.5 Acre
- Irregular: Oui
- Salle(s) de bains : 2
- Services à proximité: Un hôpital, Écoles
- Superficie habitable (approx): 2000 - 2500 Pieds carrés
- Type de services publiques: Électricité - Installé, Service du câble - Disponible, Service d'égout - Installé
- Type de structure: Terrasse
- Type d'eau de ruissellement:
- Zonage: R2
- Service d'égout: Égout sanitaire
- Type de stationnement: Garage attenant, Garage
- Nbre d'espaces de stationnement: 4
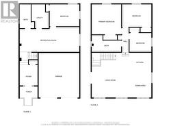
Détails des pièces :
- Hall d'entrée Niveau rez-de-chaussée 2.98 m x 2.59 m 9.78 p x 8.50 p
- Salle de divertissement Niveau rez-de-chaussée 3.57 m x 8.61 m 11.71 p x 28.25 p
- 2e chambre Niveau rez-de-chaussée 3.15 m x 4.29 m 10.33 p x 14.07 p
- Pièce utilitaire Niveau rez-de-chaussée 3.43 m x 1.60 m 11.25 p x 5.25 p
- Salon Niveau supérieur 6.43 m x 5.33 m 21.10 p x 17.49 p
- Salle à dîner Niveau supérieur 2.84 m x 3.27 m 9.32 p x 10.73 p
- Cuisine Niveau supérieur 2.84 m x 3.28 m 9.32 p x 10.76 p
- 3e chambre Niveau supérieur 2.41 m x 4.26 m 7.91 p x 13.98 p
- Chambre principale Niveau supérieur 4.32 m x 4.26 m 14.17 p x 13.98 p
- 4e chambre Niveau supérieur 3.25 m x 4.25 m 10.66 p x 13.94 p
Gracieuseté de : Keller Williams Co-Elevation Realty, Brokerage
Le contenu des inscriptions fournies par REALTOR.ca a été autorisé par les membres de l'Association canadienne de l'immeuble.
Le contenu de cette inscription est fourni par REALTOR.ca et a été autorisé par les membres de l'Association canadienne de l'immeuble.
Photos supplémentaires















