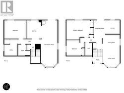
635 WAYNE CRESCENT, Midland, Ontario, L4R 5E1
699 000 $No. MLS® S12246987
Le contenu de cette inscription est fourni par REALTOR.ca et a été autorisé par les membres de l'Association canadienne de l'immeuble.
Photos supplémentaires













































