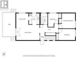
771 BIRCHWOOD DRIVE, Midland, Ontario, L4R 2P8
475 000 $No. MLS® S12496332
Le contenu de cette inscription est fourni par REALTOR.ca et a été autorisé par les membres de l'Association canadienne de l'immeuble.
Photos supplémentaires









































