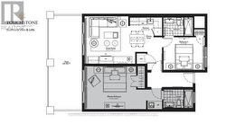
4 - 1869 MUSKOKA DISTRICT ROAD 118 WEST, Muskoka Lakes, Ontario, P1L 1W8
649 000 $No. MLS® X12393802
Le contenu de cette inscription est fourni par REALTOR.ca et a été autorisé par les membres de l'Association canadienne de l'immeuble.
Photos supplémentaires





























