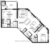
205 - 7549 A KALAR ROAD, Niagara Falls (Brown), Ontario, L2H 3W6
675 000 $No. MLS® X12495960
Le contenu de cette inscription est fourni par REALTOR.ca et a été autorisé par les membres de l'Association canadienne de l'immeuble.
Photos supplémentaires











