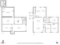
252 MELLANBY AVENUE, Port Colborne (Main Street), Ontario, L3K 2L9
629 000 $No. MLS® X12403075
Le contenu de cette inscription est fourni par REALTOR.ca et a été autorisé par les membres de l'Association canadienne de l'immeuble.
Photos supplémentaires






































