Real Estate Agent
Royal LePage North Heritage Realty
, Courtage*
12 Baker Street, Sudbury, Ontario, P3C 2E6
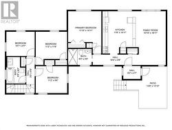
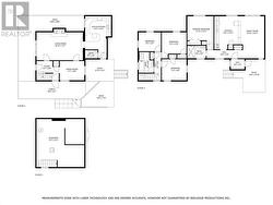
415 000 $No. MLS® 2124218
Photos supplémentaires



















































