à Louer à Glen Park Commercial, Toronto, Ontario
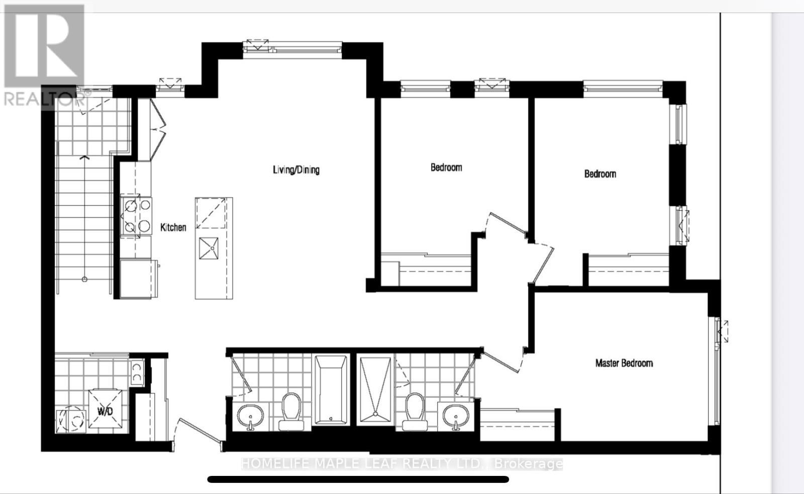
3 000.00 $ /mois3 Chambres
2 Salles de bain
-
Détails
-
Carte
-
Données démographiques
-
Vue de la rue
-
Itinéraire
-
Publicité











