à Louer à Yorkville, Toronto, Ontario
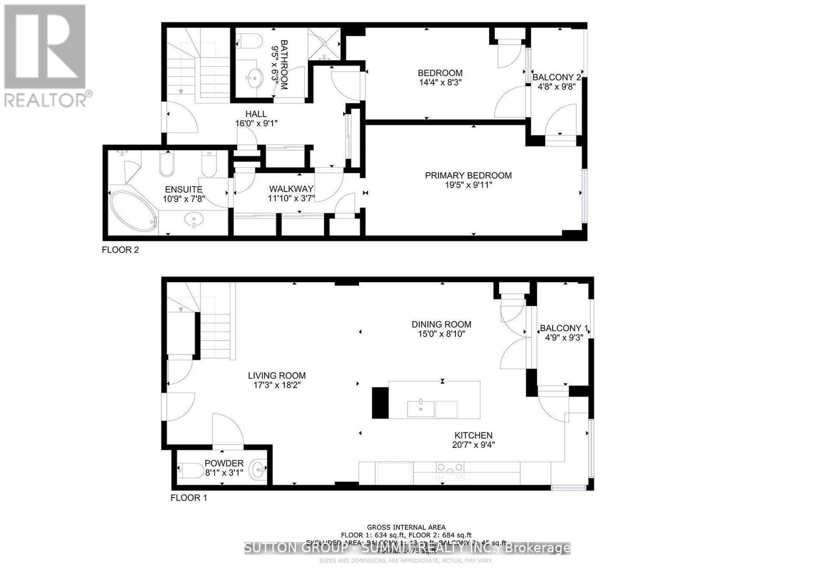
6 000.00 $ /mois2 Chambres
3 Salles de bain
-
Détails
-
Carte
-
Données démographiques
-
Vue de la rue
-
Itinéraire
-
Publicité














































