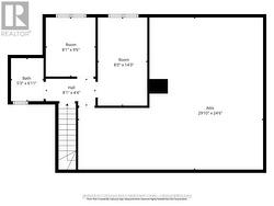
87 FITCH STREET, Welland (Prince Charles), Ontario, L3C 4V3
799 000 $No. MLS® X12473584
Le contenu de cette inscription est fourni par REALTOR.ca et a été autorisé par les membres de l'Association canadienne de l'immeuble.
Photos supplémentaires
















































