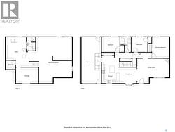
433 9th AVENUE W, Melville, Saskatchewan, S0A 2P0
245 000 $No. MLS® SK016929
Le contenu de cette inscription est fourni par REALTOR.ca et a été autorisé par les membres de l'Association canadienne de l'immeuble.
Photos supplémentaires

































