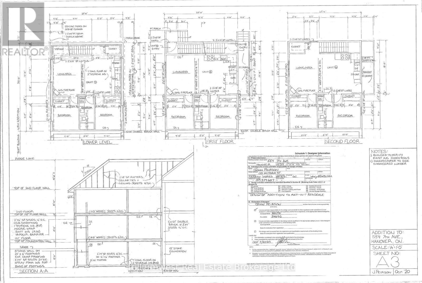
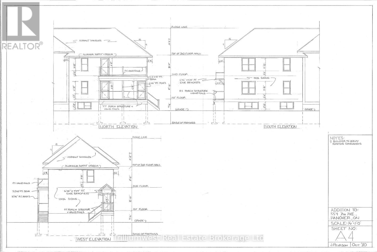
Hanover ON, N4N 2J7
No. MLS® X12298874
⚠ Rendement potentiel de l'investissement
Il n'y a pas assez de données sur cette propriété pour fournir une performance d'investissement potentielle pour le moment, veuillez cliquer sur le bouton ci-dessous pour une évaluation en personne























