Gatineau (Aylmer) QC, J9J 1G9
Remarques :
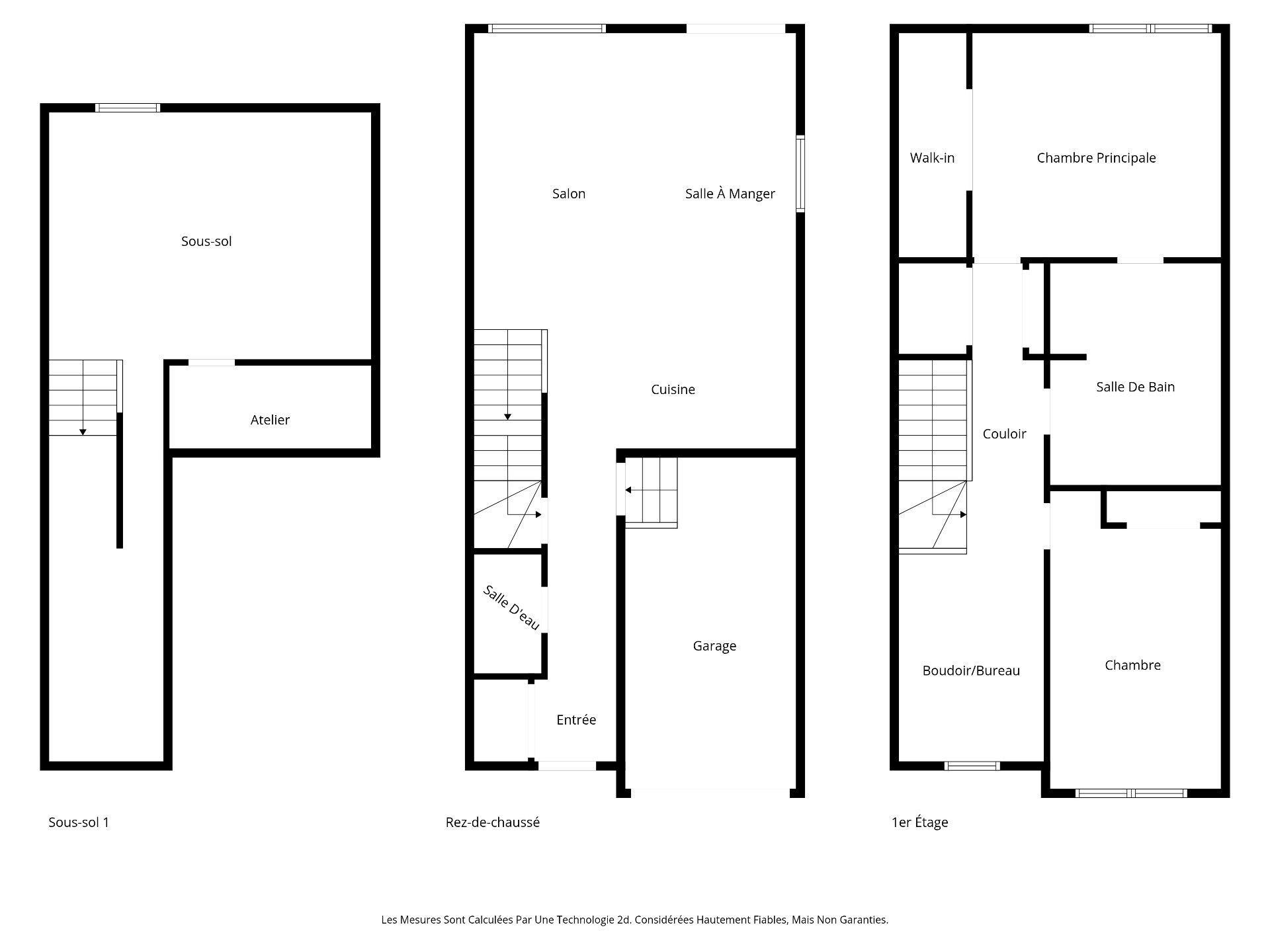
Secteur Hull. Belle maison en rangée avec garage située sur une petite rue privée et tranquille, directement en avant de l'école. Rez-de-chaussée de concept aire ouverte pouvant bien accueillir vos invités. De la salle à manger vous avez accès à votre cour arrière. A l'étage, présentement la 3e chambre à coucher est utilisée comme loft ou salle familiale mais pourrait être une 3e chambre à coucher. Grande chambre des maîtres avec la salle de bains communicante qui vous offre une grande douche en verre de 3' X 5' et le bain séparé. L'emplacement pour laveuse et sécheuse se trouve aussi à l'étage. (Voir addenda)
* Le sous-sol n'est pas aménagé alors cela vous laisse l'opportunité de l'aménager selon vos besoins.
* Le Plateau de la Capitale vous offre toutes les commodités dont vous avez besoin en étant à distance de marche du Parc de la Gatineau et à proximité d'Ottawa.
Inclusions: Cuisinière, réfrigérateur, lave-vaisselle, laveuse, sécheuse.
Exclusions : Rideaux. Tous les luminaires(seront remplacés par les originaux). Chauffe-eau et fournaise loués.
Particularités du bâtiment :
- Style: Maison détachée
- Allée: Asphalte
- Appareils en location (mensuel): Chauffe-eau, Appareil de chauffage
- Armoires de cuisine: Mélamine
- Dimensions : 20.0 x 47.0 Pieds
- Fenestration: PVC
- Garage: Attaché
- Particularités du site: Cul-de-sac
- Proximité: Cégep, Garderie/CPE, Parc, Piste cyclable, École primaire, École secondaire, Ski de fond, Transport en commun
- Revêtement: Bois, Brique, Pierre, Vinyle
- Revêtement de la toiture: Bardeaux d'asphalte
- Salle de bains: Salle de bains attenante à la CCP
- Sous-sol: Non aménagé
- Stationnement: Oui
- Terrain: Paysager
- Type de fenestration: Manivelle (battant)
- Mode de chauffage: Air soufflé (pulsé)
- Énergie pour le chauffage: Gaz naturel
- Approvisionnement en eau: Municipalité
- Système d'égouts: Municipalité
Taxes:
- Taxes municipales: 4 321 $
- Taxe scolaire: 376 $
- Taxes annuelles totales: 4 697 $
Dépenses:
- Frais Communs: 960 $
Property Assessemnt:
- Évaluation du terrain: 124 000 $
- Évaluation de l'immeuble: 427 900 $
- Évaluation totale: 551 900 $
Caractéristiques :
- Bâti en: 2016
- Chambres : 3
- Dimensions du terrain : 2898.00 Pieds carrés
- Irregular: Oui
- Largeur du terrain en façade : 24.0 Pieds
- Profondeur du terrain : 120.0 Pieds
- Salle(s) de bains : 1
- Salle(s) d'eau : 1
- Superficie habitable (approx): 1600.0 Pieds carrés
- Zonage: RESI
- Nbre d'espaces de stationnement: 2
Détails des pièces :
- Hall d'entrée Rez-de-chaussée 1.80 m x 1.52 m 5.11 p x 5.0 p Plancher : Céramique
- Salle d'eau Rez-de-chaussée 1.04 m x 1.80 m 3.5 p x 5.11 p Plancher : Céramique
- Cuisine Rez-de-chaussée 3.35 m x 3.35 m 11.0 p x 11.0 p Plancher : Céramique
- Salle à dîner Rez-de-chaussée 2.49 m x 3.45 m 8.2 p x 11.4 p Plancher : Bois
- Salon Rez-de-chaussée 4.04 m x 2.84 m 13.3 p x 9.4 p Plancher : Bois
- Chambre principale 2e niveau 4.24 m x 4.42 m 13.11 p x 14.6 p Plancher : Tapis
- Salle de bains 2e niveau 2.92 m x 3.81 m 9.7 p x 12.6 p Plancher : Céramique
- Chambre 2e niveau 2.95 m x 4.39 m 9.8 p x 14.5 p Plancher : Tapis
- Bureau 2e niveau 3.89 m x 2.54 m 12.9 p x 8.4 p Plancher : Tapis Note: Chambre à coucher
Convertir la mesure en :
Données fournies par : Centris - 600 Ch Du Golf, Ile -Des -Soeurs, Québec H3E 1A8
Nous croyons que tous les renseignements affichés sont exacts, mais nous ne le garantissons pas; les renseignements devraient être vérifiés de façon indépendante. Aucune garantie ou représentation de quelque nature que ce soit n’est offerte. Droits© 2021 Tous les droits sont réservés.
Tendances des prix du marché immobilier
Emplacement de 4-120Z Boul. de l'Amérique-Française, Gatineau (Aylmer), QC, J9J 1G9
Données démographiques de 4-120Z Boul. de l'Amérique-Française, Gatineau (Aylmer), QC, J9J 1G9
Étape de vie
Familles grandissantesType d'emploi
MixteRevenu moyen du ménage
118 016.09 $Nombre moyen d'enfants
1,88Population à domicile
Structure à domicile
Âge de la population
Éducation
Niveau d'éducation
No certificate/diploma/degree
12.74 %Diplôme d'études secondaires ou équivalent
19.78 %Certificat ou diplôme d'apprentissage ou d'une école de métiers
7.7 %Diplôme d'études collégiales ou d'études postsecondaires (non universitaires)
19.95 %Certificat d'études universitaires
2.91 %Diplômes d'études universitaires
36.92 %Navetteur
Se rendre au travail
En auto
81.48 %En transport en commun
13.98 %À pied
0.53 %À bicyclette
0.0 %Par tout autre moyen
4.01 %Diversité Culturelle
Connaissance des langues officielles
Langue maternelle
Données Sur Le Bâtiment
Type de bâtiment
Appartements (faible hauteur et à étages multiples)
58.38 %Maisons
41.62 %














































