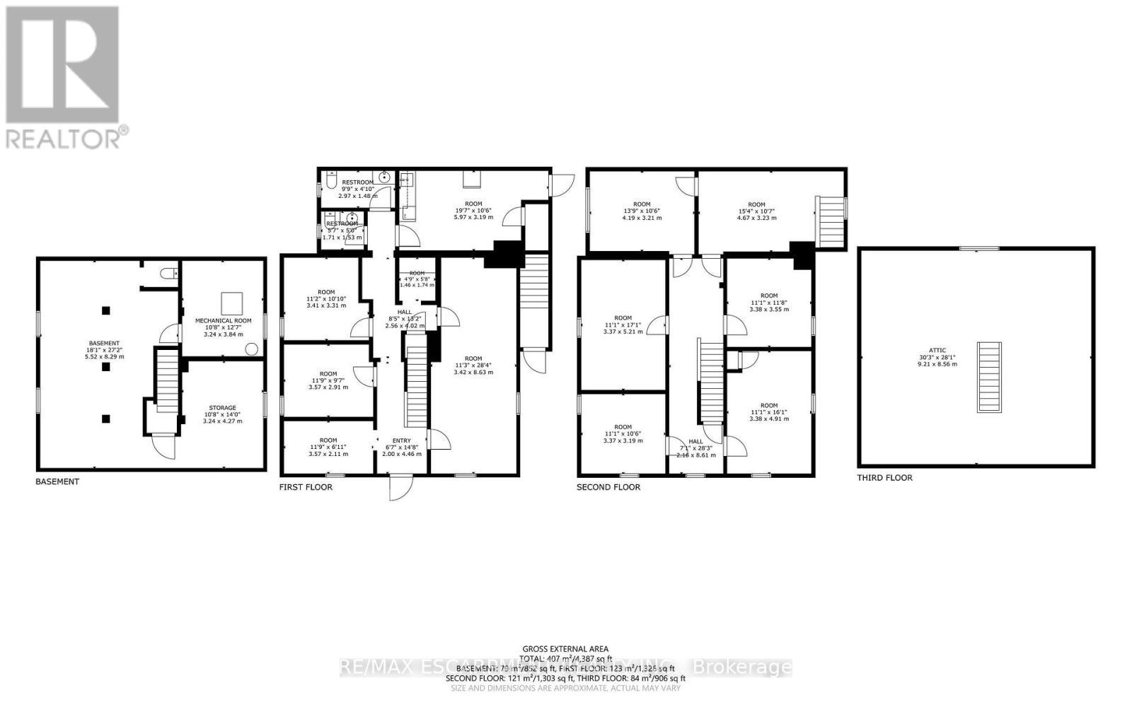
Commercial For Sale In Corktown, Hamilton, Ontario
$1,295,000None Beds
-
Details
-
Map
-
Demographics
-
Street View
-
Get Directions
-
Advertising

























