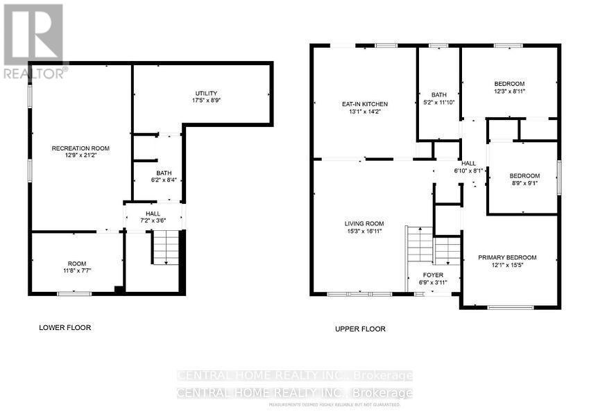
House For Sale In Westvale, Waterloo, Ontario
$759,000 QuickQuoteTM:3+1 Beds
2 Baths
-
Details
-
Map
-
Demographics
-
Street View
-
Get Directions
-
Advertising


























