Button CopyPathCircle CloseCircle Left ArrowArrow Down Icon GreyClosecirclecircleBurger
Image 1
Image 2
Image 3
$499,900

1+2 Beds

2 Baths

700 - 1100 FEETSQ

QuickQuoteTM: $467K - $626K

Midland ON, L4R 1Y6

MLS® # S12442125

Property Information:

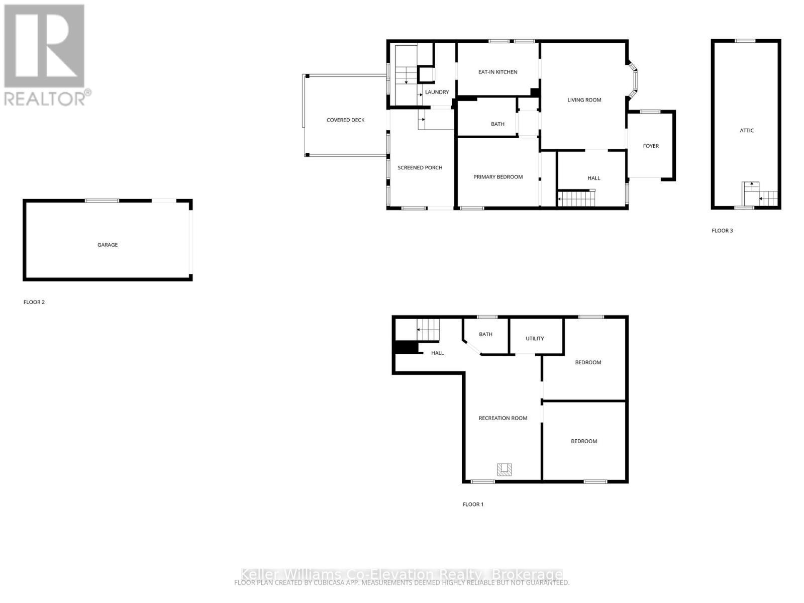
MUCH MORE SPACE THAN THERE FIRST APPEARS, with its finished loft and fully finished basement, this Cute 3 Bedroom, 2 Bath + Loft + Den offers plenty of space for your family or guests. Features of this Home include: Lovely Backyard complete with a Walkout from the mostly closed in Back Porch onto a Deck covered by a Hard-Top Gazebo; Fully Fenced Back Yard w/ a Shed and Side Gate to the Paved Driveway & Garage. The Main Floor includes the Primary Bedroom & a small Den area; Eat-in Kitchen w/Stainless Steel Gas Range & Microwave (2023); Living Rm w/sunny Bay Window; Updated Bathroom; and off of the Kitchen, a Nook for the Combination Washer/Dryer; and a Chair Lift (can stay or go) down to the Finished Basement. The Basement features a Cozy Family Room w/Gas Stove; a 2nd Full Bath; and 2 Additional Spacious Bedrooms. The home is heated with F/A Gas Furnace and has CAIR, HRV and an Exterior Outlet for Portable Generator. Completely updated over the years, recent Upgrades include, in 2021: New 12 x 24 Detached Garage w/ 9 x 7 Garage Door; Metal Roof on House; and in 2023: Exterior Cladding done on House with Styrofoam Insulation & New Siding to match Garage; Eavestrough, Soffit, & Fascia; 6 New Windows & 2 New Doors. This Home is Move-in Ready! (id:27)

Building Features:

  • Style: Detached
  • Building Type: House
  • Amenities: Canopy
  • Architectural Style: Raised bungalow
  • Basement Development: Finished
  • Basement Type: Full
  • Construction Style - Attachment: Detached
  • Exterior Finish: Vinyl siding
  • Fire Protection: Smoke Detectors
  • Fireplace: Yes
  • Floor Space: 700 - 1100 sqft
  • Foundation Type: Poured Concrete
  • Heating Type: Forced air
  • Heating Fuel: Natural gas
  • Cooling Type: Central air conditioning
  • Appliances: Water meter, Dryer, Stove, Washer, Refrigerator

Property Features:

  • OwnershipType: Freehold
  • Property Type: Single Family
  • Bedrooms: 1+2
  • Bathrooms: 2
  • Amenities Nearby: Public Transit, Schools
  • Features: Level
  • Fence Type: Fenced yard
  • Floor Space (approx): 700 - 1100 Square Feet
  • Irregular: Yes
  • Lot Depth: 100.0 Feet
  • Lot Frontage: 44.0 Feet
  • Lot Size: 44 x 100 FT
  • Structure Type: Deck, Porch, Shed
  • Surface Water:
  • Utility Type: Sewer - Installed, Cable - Installed, Hydro - Installed
  • Zoning: R2
  • Sewer: Sanitary sewer
  • Parking Type: Detached garage, Garage
  • No. of Parking Spaces: 5

Rooms:

  • Loft 2nd Level 7.21 m x 2.79 m
  • Family Basement Level 5.47 m x 3.32 m
  • 2nd Bedroom Basement Level 3.43 m x 3.62 m
  • 3rd Bedroom Basement Level 3.57 m x 3.62 m
  • Utility Basement Level 1.53 m x 2.30 m
  • Living Main Level 4.68 m x 3.71 m
  • Kitchen Main Level 2.31 m x 3.57 m
  • Primary Bedroom Main Level 3.02 m x 3.57 m
  • Sitting Main Level 2.41 m x 2.96 m
  • Foyer Main Level 2.83 m x 1.98 m

Convert Measurement to:


Courtesy of: Keller Williams Co-Elevation Realty, Brokerage

REALTOR.ca  

QuickQuoteTM Powered by RPS

Location of 268 ELIZABETH STREET, Midland, Ontario, L4R 1Y6

Demographic Information of 268 ELIZABETH STREET, Midland, Ontario, L4R 1Y6

Life Stage

Midlife Families

Employment Type

Blue Collar/Primary, Blue Collar/Service Sector

Average Household Income

$83,180.28

Average Number of Children

1.60

Household Population

Household Structure

Age of Population

Education

Education Level

No certificate/diploma/degree

20.85 %

High school certificate or equivalent

36.97 %

Apprenticeship trade certificate/diploma

6.89 %

College/non-university certificate

25.68 %

University Degree

9.61 %

Commuter

Travel To Work

By Car

86.09 %

By Public Transit

0.0 %

By Walking

11.6 %

By Bicycle

0.14 %

By Other Methods

2.17 %

Cultural Diversity

Knowledge of Official Language

Mother Tongue

Building Information

Building Type

Apartments (Low and High Rise)

22.13 %

Houses

77.87 %

Own Vs. Rent