Kirkland QC, H9J 3L3
Remarks:
Située dans le quartier prisé de Timberlea, cette spacieuse propriété marie à merveille confort, commodité et potentiel futur. Idéale pour les familles en quête d'espace et de fonctionnalité, elle saura répondre aux besoins d'aujourd' hui tout en offrant des possibilités pour demain.
Située dans le quartier prisé de Timberlea, cette spacieuse propriété marie à merveille confort, commodité et potentiel futur. Idéale pour les familles en quête d'espace et de fonctionnalité, elle saura répondre aux besoins d'aujourd' hui tout en offrant des possibilités pour demain.
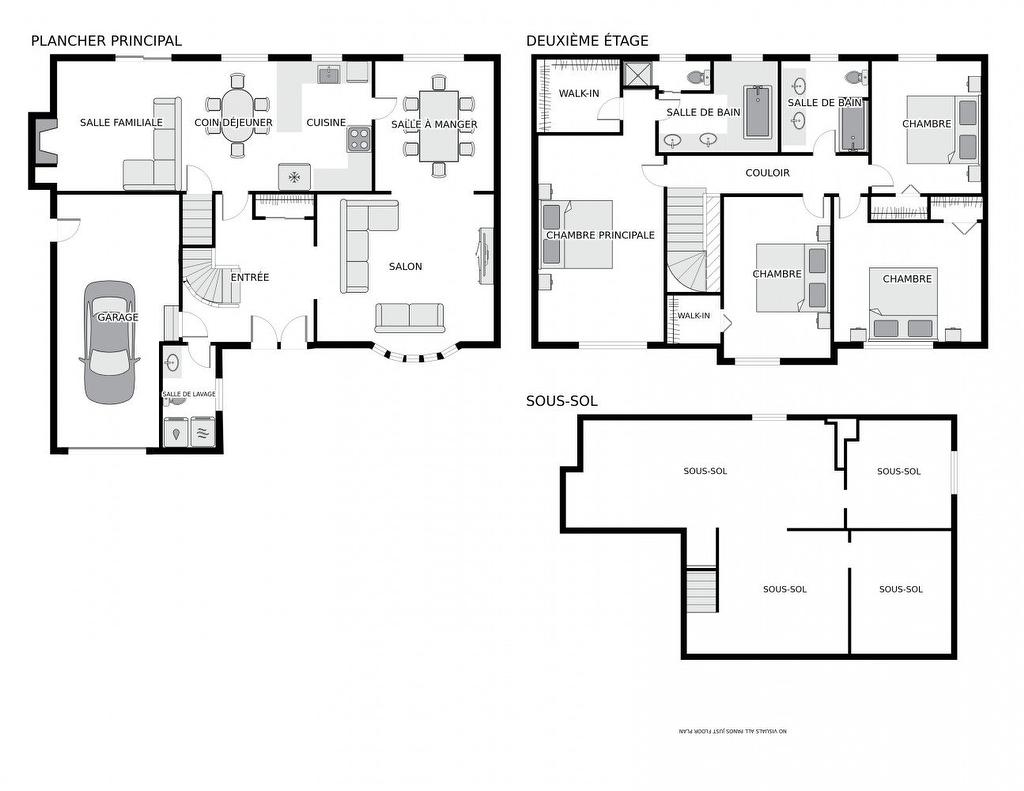
Le rez-de-chaussée à aire ouverte propose un lumineux salon avec foyer, une cuisine conviviale avec coin-repas ainsi qu'une
salle à manger et un salon familial chaleureux, parfaits pour recevoir vos proches.
À l'étage, la suite principale offre un walk-in et une salle de bain attenante, complétée par trois chambres supplémentaires avec revêtement de sol récent et une 2e salle de bain.
Le sous-sol, autrefois aménagé, constitue désormais une toile vierge à personnaliser à la suite du sinistre de 2024. Cet
espace offre une opportunité exceptionnelle de créer l'aménagement qui correspond à votre style de vie; que ce soit une salle de jeux, un cinéma maison ou une suite pour invités.
À l'extérieur, vous profiterez d'un vaste terrain entièrement clôturé avec piscine creusée au sel, deux cabanons de rangement
et un stationnement généreux comprenant un garage intégré et une allée pouvant accueillir jusqu'à cinq voitures.
À seulement 6 minutes de marche du REM, avec un accès rapide aux autoroutes 40 et 20, aux écoles réputées, aux parcs,
commerces et restaurants, cette propriété combine la tranquillité de la banlieue et l'accessibilité urbaine.
Caractéristiques :
- 4 chambres à coucher;
- Aires de vie à aire ouverte incluant salon, salle à manger, cuisine et salon familial;
- Suite principale avec salle de bain attenante et walk-in;
- Sous-sol prêt à être aménagé selon vos besoins;
- Grand terrain clôturé avec piscine creusée au sel;
- Garage + allée pour 5 voitures;
- Proximité du REM, des autoroutes, des écoles, commerces et parcs.
Cette propriété offre non seulement un cadre de vie confortable mais elle permet aussi la liberté de créer l 'espace de sous-sol
de vos rêves. Une opportunité à ne pas manquer!
Inclusions: Luminaires, Deux (2) unités murales de climatisation, ouvre-porte de garage électrique, système d'irrigation, piscine creusée et accessoires. Le tout est offert sans garantie légale de qualité.
Building Features:
- Style: Detached
- Basement: 6 feet and more, Partially finished
- Bathroom: Ensuite powder room, Separate shower
- Driveway: Asphalt
- Fireplace-Stove: Wood fireplace
- Foundation: Poured concrete
- Garage: Built-in
- Parking: Driveway, Garage
- Pool: Heated, Inground
- Property or unit amenity: Wall-mounted air conditioning
- Proximity: Highway, Daycare centre, Elementary school, Réseau Express Métropolitain (REM), High school, Public transportation
- Size: 43.0 x 38.0 Feet
- Heating System: Electric baseboard units
- Heating Energy: Electricity
- Water Supply: Municipality
- Sewage System: Municipality
Taxes:
- Municipal Tax: $5,810
- School Tax: $791
- Annual Tax Amount: $6,601
Property Assessemnt:
- Lot Assessment: $487,500
- Building Assessment: $494,900
- Total Assessment: $982,400
Property Features:
- Bedrooms: 4+2
- Bathrooms: 2
- Half Bathrooms: 1
- Built in: 1986
- Irregular: Yes
- Lot Depth: 100.0 Feet
- Lot Frontage: 73.0 Feet
- Lot Size: 672.40 Square Metres
- Zoning: RESI
- No. of Parking Spaces: 6
Rooms:
- Foyer - Irregular Ground Level 3.76 m x 3.56 m 12.4 ft x 11.8 ft Flooring: Ceramic
- Powder room Ground Level 2.84 m x 1.55 m 9.4 ft x 5.1 ft Flooring: Ceramic
- Family Ground Level 4.90 m x 4.19 m 16.1 ft x 13.9 ft Flooring: Parquetry
- Dining Ground Level 3.66 m x 3.35 m 12 ft x 11 ft Flooring: Parquetry
- Kitchen Ground Level 2.57 m x 3.66 m 8.5 ft x 12 ft Flooring: Ceramic
- Dinette Ground Level 2.57 m x 3.66 m 8.5 ft x 12 ft Flooring: Ceramic
- Living Ground Level 3.66 m x 3.66 m 12 ft x 12 ft Flooring: Parquetry Note: Foyer
- Primary Bedroom - Irregular 2nd Level 5.82 m x 3.58 m 19.1 ft x 11.9 ft Flooring: Wood
- Bathroom 2nd Level 3.35 m x 2.59 m 11 ft x 8.6 ft Flooring: Ceramic Note: salle de bain attenante
- Bedroom 2nd Level 4.67 m x 3.02 m 15.4 ft x 9.11 ft Flooring: Wood
- Bedroom 2nd Level 4.19 m x 4.17 m 13.9 ft x 13.8 ft Flooring: Wood
- Bedroom 2nd Level 3.84 m x 3.10 m 12.7 ft x 10.2 ft Flooring: Wood
- Bathroom 2nd Level 2.21 m x 2.54 m 7.3 ft x 8.4 ft Flooring: Ceramic
- Playroom Basement Level 5.36 m x 5.16 m 17.7 ft x 16.11 ft Flooring: Concrete Note: Division seulement
- Bedroom Basement Level 3.96 m x 3.28 m 13 ft x 10.9 ft Flooring: Concrete Note: Division seulement
- Bedroom Basement Level 3.68 m x 3.38 m 12.1 ft x 11.1 ft Flooring: Concrete Note: Division seulement
Convert Measurement to:
Data provided by: Centris - 600 Ch Du Golf, Ile -Des -Soeurs, Quebec H3E 1A8
All information displayed is believed to be accurate but is not guaranteed and should be independently verified. No warranties or representations are made of any kind. Copyright© 2021 All Rights Reserved.
Market Price Trends
Location of 19470 Boul. Elkas, Kirkland, QC, H9J 3L3
Demographic Information of 19470 Boul. Elkas, Kirkland, QC, H9J 3L3
Life Stage
Middle-Aged with TeensEmployment Type
Service Sector/White CollarAverage Household Income
$199,825.96Average Number of Children
1.84Household Population
Household Structure
Age of Population
Education
Education Level
No certificate/diploma/degree
8.45 %High school certificate or equivalent
21.35 %Apprenticeship trade certificate/diploma
6.09 %College/non-university certificate
21.15 %University certificate (below bachelor)
4.7 %University Degree
38.25 %Commuter
Travel To Work
By Car
91.66 %By Public Transit
5.6 %By Walking
0.7 %By Bicycle
0.12 %By Other Methods
1.92 %Cultural Diversity
Knowledge of Official Language
Mother Tongue
Building Information
Building Type
Apartments (Low and High Rise)
0.23 %Houses
99.77 %


















































