Windsor ON, N8X 3S7
Property Information:
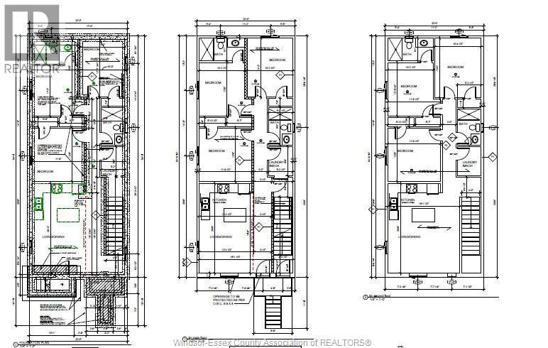
A brand new, purpose-built 3-unit multi-family property on a spacious 3000 sq ft lot in a sought-after East Windsor location. This thoughtfully designed project offers three self-contained units, each with a functional 3-bedroom layout, modern kitchen, open-concept living/dining area, and 3 full bathrooms, all with private entrances for maximum privacy and convenience. Built with today’s lifestyle in mind, the property features energy-efficient construction, central air conditioning, forced-air furnace, and natural gas heating. Interiors are finished with ceramic or porcelain tile, laminate flooring, and a durable exterior blend of aluminum/vinyl, brick, and stucco. Additional highlights include 3 parking spaces with gravel drive, a low-maintenance asphalt roof, and full sanitary/water utility connections. Ideally located just off Foch Ave, this property is close to schools, shopping, public transit, parks, and everyday amenities—making it a smart choice for investors and highly appealing to families seeking modern, convenient living. (id:27)
Building Features:
- Style: Multiplex
- Building Type: Duplex
- Amenities: Laundry Facility, Shopping Area
- Exterior Finish: Brick, Stucco
- Flooring Type: Laminate
- Foundation Type: Concrete
- Heating Type: Forced air
- Heating Fuel: Natural gas
- Cooling Type: Central air conditioning, Fully air conditioned
Property Features:
- OwnershipType: Freehold
- Property Type: Multi-family
- Irregular: Yes
- Lot Size: 3000 SQ FT
- Zoning: RD1.3
- Parking Type: Other
- No. of Parking Spaces: 3
Rooms:
- Bathroom 2nd Level Measurements not available
- Bathroom 2nd Level Measurements not available
- Laundry 2nd Level Measurements not available
- Primary Bedroom 2nd Level Measurements not available
- Bedroom 2nd Level Measurements not available
- Bedroom 2nd Level Measurements not available
- Kitchen 2nd Level Measurements not available
- Breakfast 2nd Level Measurements not available
- Living 2nd Level Measurements not available
- Primary Bedroom Basement Level Measurements not available
- Bedroom Basement Level Measurements not available
- Bedroom Basement Level Measurements not available
- Laundry Basement Level Measurements not available
- Kitchen Basement Level Measurements not available
- Breakfast Basement Level Measurements not available
- Bathroom Basement Level Measurements not available
- Bathroom Basement Level Measurements not available
- Living Basement Level Measurements not available
- Bathroom Main Level Measurements not available
- Bathroom Main Level Measurements not available
- Primary Bedroom Main Level Measurements not available
- Bedroom Main Level Measurements not available
- Bedroom Main Level Measurements not available
- Laundry Main Level Measurements not available
- Kitchen Main Level Measurements not available
- Breakfast Main Level Measurements not available
- Living Main Level Measurements not available
⚠ Potential Investment Performance
There is not enough data on this property to provide a potential investment performance at this time, please click the button below for an in-person valuation
Market Price Trends
Location of 2416 HIGHLAND AVENUE, Windsor, Ontario, N8X 3S7
Demographic Information of 2416 HIGHLAND AVENUE, Windsor, Ontario, N8X 3S7
Life Stage
Midlife FamiliesEmployment Type
Blue Collar/Primary, Blue Collar/Service SectorAverage Household Income
$82,627.64Average Number of Children
1.67Household Population
Household Structure
Age of Population
Education
Education Level
No certificate/diploma/degree
20.8 %High school certificate or equivalent
39.74 %Apprenticeship trade certificate/diploma
4.45 %College/non-university certificate
24.29 %University Degree
10.73 %Commuter
Travel To Work
By Car
88.48 %By Public Transit
7.42 %By Walking
2.29 %By Bicycle
0.0 %By Other Methods
1.81 %Cultural Diversity
Knowledge of Official Language
Mother Tongue
Building Information
Building Type
Apartments (Low and High Rise)
33.66 %Houses
66.34 %




